actualités
Architecture
Créations
Paysage
A PROPOS
Contact
Menu
actualités
Architecture
Créations
Paysage
A PROPOS
Contact
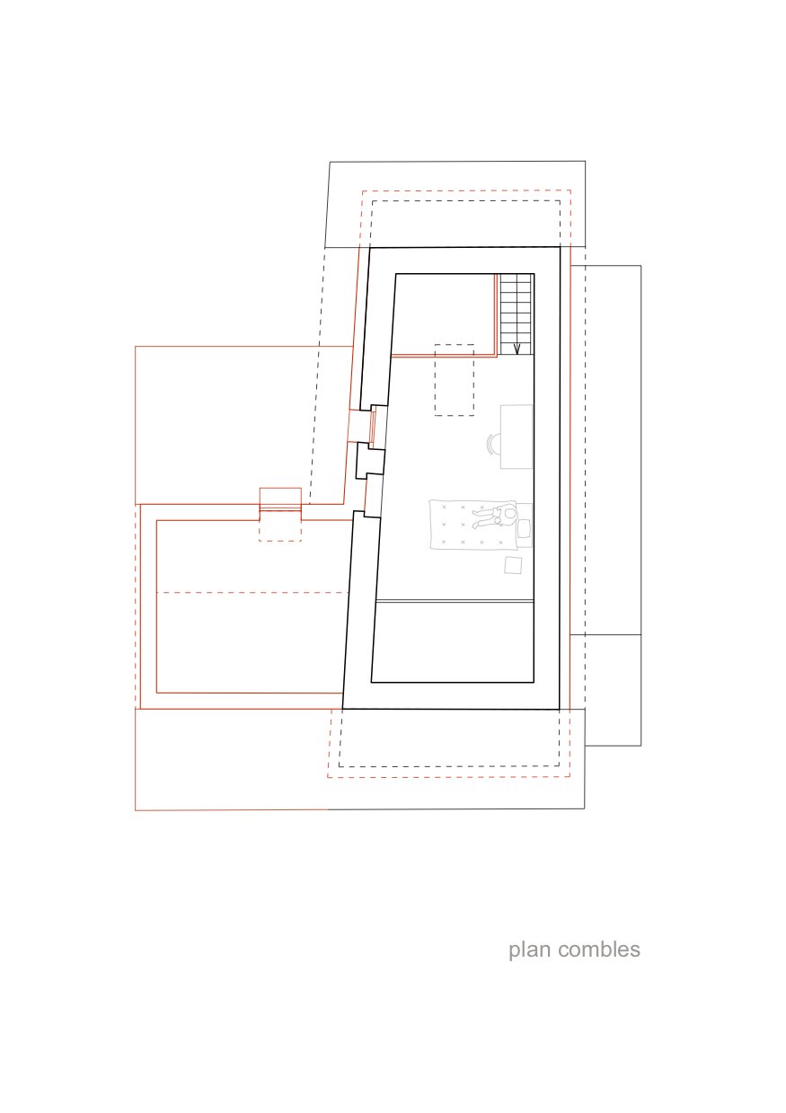
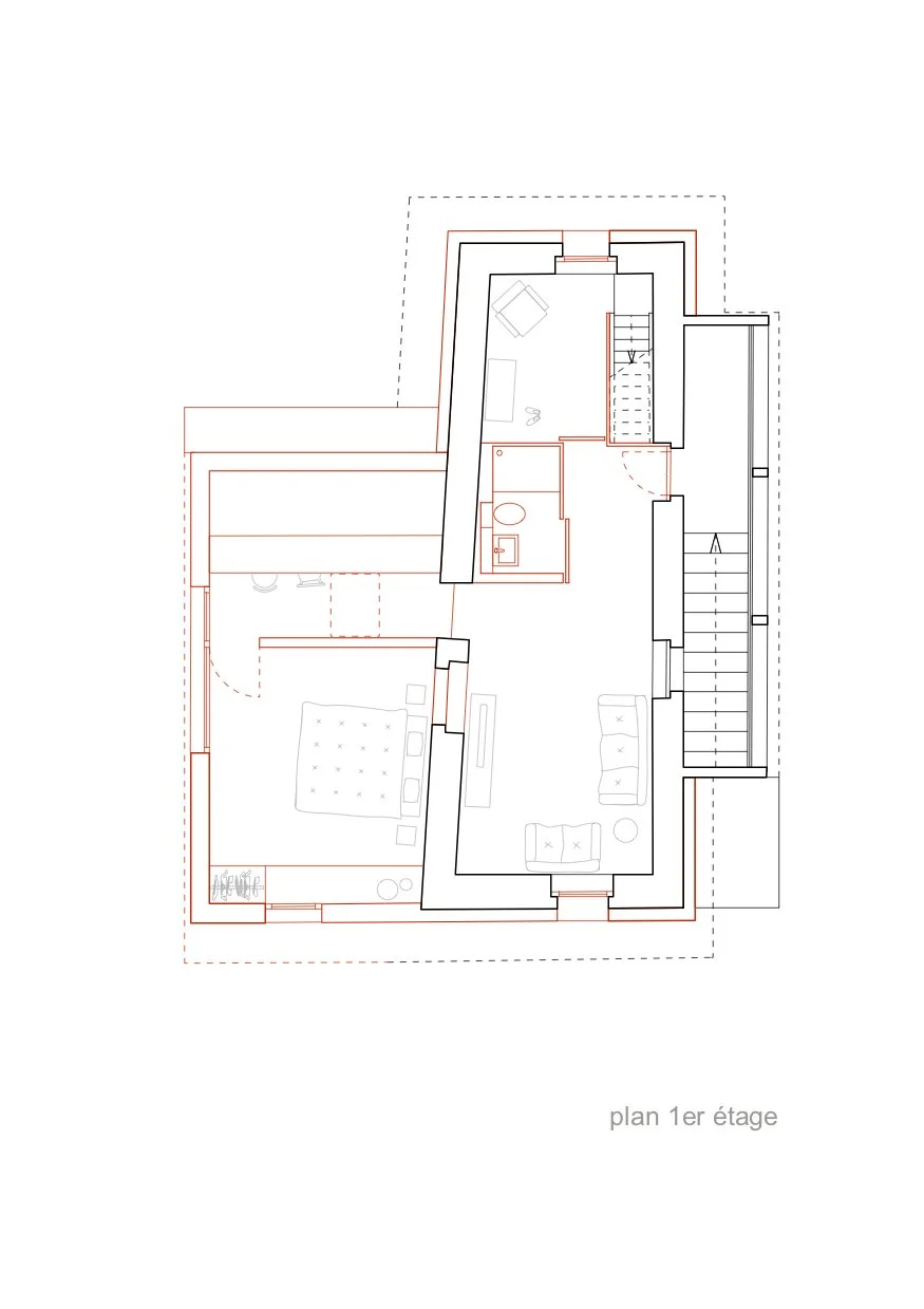
Agrandissement d’une maison à Chavannes-le-Veyron
photos: Laetitia Gessler